全部見せます!!【家ツアー】『家族一体型キューブハウス』その1
今回は『家族一体型キューブハウス』。実はこの家、竣工は2014年秋。今は2018年の秋。この家のポテンシャルは皆認めているものの、完成した2014年時点ではまだ家ツアーの連載は始まっておらず、家ツアーに必要な写真を撮っていなかった。そのため泣く泣く家ツアーの選考からは外され続けた悲運の家だ。

筆者の独断と偏見に満ちた説明で、当社の施工事例をあまなすところなく一方的、かつ大胆に紹介する企画 『全部見せます!家ツアー』シリーズ。

ちまたでは『カクレモモジリ』に似ていることで有名だ。知らない人はこちらを見てくれ。1秒で理解するはずだ。
今回は先日完成したばかりの兵庫県神戸市の
『漆黒のガレージハウス』。
さっそく始めようか。
坪単価: 44.5万円(駐車場含) (税込48万円)
建築価格: 1,400万円(税込1,540万円)
所在地: 兵庫県神戸市須磨区
敷地面積: 100㎡
延床面積: 103.92㎡(駐車場含)
構造: 木造
工法: 木造在来工法
家族構成:ご夫婦と愛犬
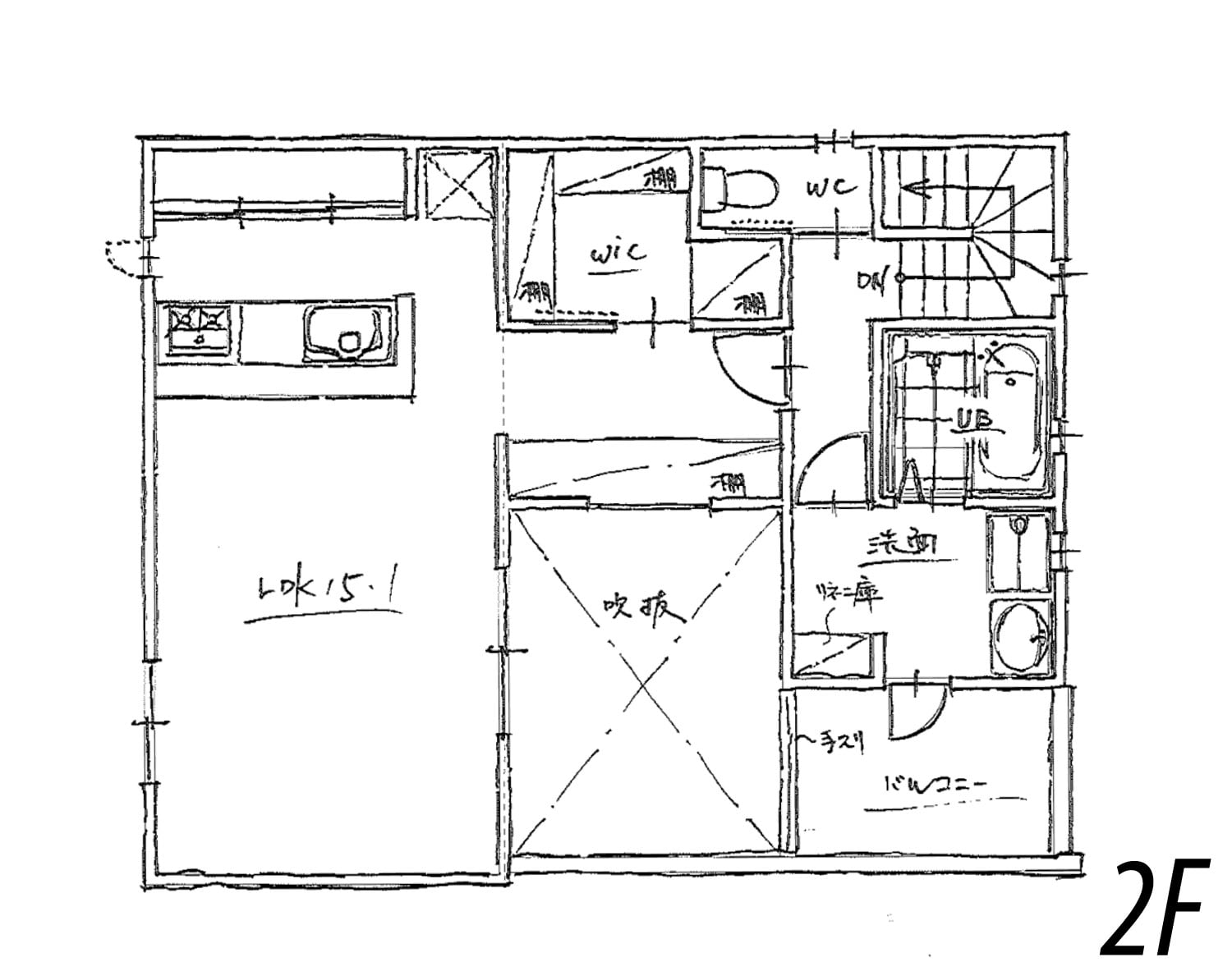
ご夫婦お二人でお住まいの二階建て木造住宅。1Fにはガレージと寝室。2FにLDKと水周りを配置した贅沢な間取りだ。

今回の家はコンフォート初の真っ黒なデザインだ。
ここまで、男らしい家が今まであっただろうか。
男塾に入塾したら、まちがいなく筆頭だろう。
芸能人で例えるなら、間違いなく藤岡弘、択一だ。
そんな家がコレだ。

木目調の外壁と左下のシャッターがアクセントになり、激シブに仕上がった。
そして、
お気づきだろうか。
窓ナッシング。
マジで無い。
二度見しても、無いものは無い。
実は、目の前の道路が県道で交通量が多い。そして小学校の通学路にもなっている。
つまり、人の目が気になる立地ということで
それなら、潔く正面には窓を無くしたわけだ。
と、いうことは、
部屋の中、真っ暗なんじゃねーの!!?
「外観をシブく見せるために、窓なくしたんで、部屋は暗いっす。あとは頑張って下さい!てへぺろ(・ω<)」
「って、言うつもりですかいダンナ!?」
賢明な読者のみなさんはそう思うだろう。
ああ、そう思うだろうよ。
否。

へっ、、明る!!?
外観のパートなのに、リビングをフライングゲットで見せてしまうが、
私、思ったより明るいんです!
2Fにあるリビングはこの明るさだ。
方角や高さを計算した位置に窓を設置することで、最高な採光をゲッツ。
というわけだ。

この真南方向にある、二階の窓と
このポーチの窓から、充分に光が注ぐわけだ。
ちなみに、このポーチは奥様の車用の駐車場でもある。
ご理解いただけただろうか?
一見、窓ねーのに、明るい家というわけだ。

では、新ためて室内に突入しよう。

現在地を確認しておく。現在、玄関に突入するところだ。

モモジリもやる気がみなぎっている。

パカリ。

黒いタイルがシブい玄関ホールの登場だ。

そして壁両面に設置されているシューズクローク。ふんだんに靴を収納できる二郎系シューズクローク。
(最近、自分でも意味がわからないことを書いてる時がある。疲れてるのだろうか。)

得意げに靴を置くことだって可能だ。


いくぜ、やっこさんよ。
そしてシューズクロークの奥にある勝手口を開けると、

ガレージに隣接した、空間が現れた。
ここには車好きの旦那さんが自分で車をイジるための工具やパーツを置くために設けられたスペースだ。
そして、

ふほっ!
これまた漆黒の広々ガレージの登場だ。

シャッター側から見たビュー。工具置きスペースが見える。
車を入れても充分なメンテナンススペースを確保した広いガレージに仕上げた。
コンセントも、もれなく完備。

もちろん電動シャッターで楽々だ。

外から見ると、シャッターを開けるとこうなる。

玄関ホールに戻ってきたところだ。
むっ、左手に勝手口がある。

▲現在地は、玄関を上がったところにある勝手口の前だ。

ちょうど家の真裏に出れる場所にある勝手口。
おもむろにパカリ。
モモジリが驚く理由があった。

真下に川!
ご安心いただきたい。ここは危ないのでフェンスを外周に取り付ける予定だ。

家の裏側は、まさかの大自然だった。
そして、一旦外に出る。

お隣との間の隙間に突入。

ここはワンちゃんが家の外周を走り回れる至極のワンワンロードだ。
当然、フェンスを取り付ける予定なので安心していただきたい。
角をドリフトして曲がると、そこは、
あぶねー!
何回も言うが撮影時はまだついてなかったが、フェンスを設置する予定だ。
そして、先ほどの勝手口につながるというわけだ。

この御仁がI様邸のアイドル「リュウくん」だ。
ワンワンロードを駆け回る。
再び玄関スペースに戻る。
右手に激シブなお手洗いを発見。

▲現在地は階段下だ。

階段下の3.5畳のフリースペース。
物置にするもよし。こおどりするもよし。


何やら気になるドアを発見。

パカリ。

おおっ!
ワンポイントの漆黒クロスが、これまたインダストリアル感をしとどに感じる一品だ。

反対側のビュー。
木目のドアと白っぽい素材感のフローリングがベストマッチ。

かなり奥行きがある押入れ兼、クローゼントを完備。
寝室としては申し分あるまい。

なかなかいい素材感だと思わないかい?

ちなみに現在地の部屋はここだ。
冒頭にも書いたが、人通りが多い県道に隣接している土地であることや、1Fにガレージがあることなどから、1F部分には光があまり入らない
そのためLDKを2Fへ配置したというわけだ。
さて、長くなったので続きは次回だ。震えて待て。
掲載日: 2017年03月5日
デザイン性と家族の一体感。プライバシーと解放感を両立させた「ハッとしてグー設計」。説明のいらない15畳の絶品LDK。
掲載日: 2017年03月11日