全部見せます!!【家ツアー】第5弾 『中庭とカーテンのいらないリビングの家』その2

00

 

さて、前回は1Fの中庭までツアーした。今回はその続きだ。

 

 

▼1Fの様子は前回の記事を参照くれ。
【全部見せます!! 家ツアー】第5弾  『中庭とカーテンのいらないリビングの家』 その1

 

 

キッチンとオーダーメイドのダイニングテーブル。

41-0

41

 

世の奥様方が気になってしょうがない、女の城、キッチンに突入だ。

 

まず、目を引くのがド真ん中に鎮座するダイニングテーブルだ。

 

 

これは、コンフォート御用達の家具職人Y氏によるオーダーメイドのテーブルだ。

 

 

43普段はパタンと折れて、通路になる便利な延長式だ。

 

 

 

 

 

44裏面には補強も施し強度は十分だ。

 

 

 

 

 

 

44-2食事以外にもこういう使い方もできる。

 

 

 

 

 

 

45そして裏面にはレンジ台に。

 

こういったものを隠すことで整然とし、見た目がスッキリするわけだ。

 

 

 

46テーブルとセットで、まだ小さいお子様のために踏み台をプレゼントしてくれた。

 

ちくしょう!Y氏やりやがる!

 

 

 

47こうやって小さくてもちゃんとテーブルにつくことができるわけだ。

 

 

 

 

 

 

 

42

キッチンとリビングは段差をつけてセパレート土間スタイル。

 

 

 

 

 

48

そしてパントリーも完備。

 

収納バッチコーイ。

 

 

 

 

49家事楽に必須の勝手口も完備。

 

これはゴミ出し、荷物の出し入れに最高に便利な一品だ。

 

 

 

 

 

52

駐車場からダイレクトイン。

 

 

 

 

 

 

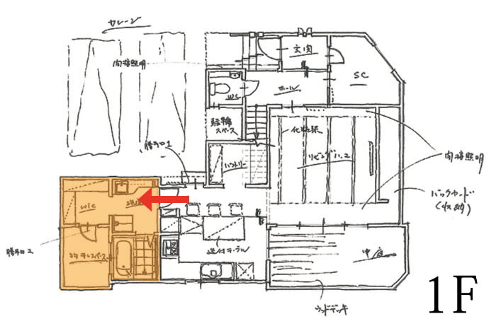
水周り。夢の共演。

53-2

 

 

54

家事周りの中で特筆すべき便利な間取りのご登場だ。

 

洗濯機・洗面所・脱衣所・クローゼット・物干しバルコニー・風呂が夢の共演。

 

 

きたコレ。

 

ここだけで住めそうな勢いだ。

 

 

070

この洗面台の家具職人Y氏の手作りだ。

 

味わい深い。

 

 

 

 

 

 

59左奥には物干し専用のバルコニーだ。

 

洗濯機からバルコニーまで、大人で2秒の距離だ。

 

 

ここで洗濯物を取り込んで目の前のクローゼントにぶち込む。

 

 

その移動距離、驚異の5歩以内。

 

 

そして個人的に気に入ったのがこれ。

55-2

室内用の物干しだ。最初に見た時の衝撃が忘れられない。

 

 

そこ!?

 

 

60そしてお風呂。

 

ご主人は、窓を大開放して入っているらしい。

 

ちゃんと近隣からは見られないように配置している。

 

 

余談だが、最近の網戸がかっこいい。

36

見にくくて申し訳ない。

 

巻いた状態で収まってるタイプの網戸。

 

これの何が良いかっていうと、

 

従来の網戸なら窓の半面どちらかにずっと網戸が見えている状態だった。

しかし、これは巻き取り型なので、普段は完全に見えない状態になるというわけだ。

 

これまた、説明が難しい。

 

わからない人は電話してくれ。

 

 

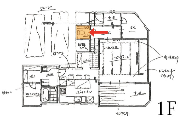
リビングを出て、2Fへ上がるための通りすぎついでにトイレをチラ見。

71-0

 

71

縦長スリット窓があるので明るい。

 

 

気持ちも明るく用を足せることは言うまでもない。

 

 

 

 

 

トイレで考え事をする人は多いと思うが、明るいとそれだけで気持ちが前向きになるものだ。

 

 

74

黒と白で仕上げた激シブのだ。

 

広さも十分だ。

 

 

 

 

752Fへ。

 

 

 

 

 

 

 

階段を上がると、そこは、、、

76-0

 

76-2

明るっ!!

 

階段を上がるいきなりのバルコニー。

 

77

カチャリ。

 

 

 

 

 

 

78

うぇ〜い。

緑の芝生が気持ちいい。

 

79

見晴らしもなかなかだ。

 

 

 

 

 

 

80

子供部屋ともつながっている。

 

 

 

 

 

 

81ここから1Fの中庭の様子を観察できる。

 

 

 

 

 

 

82このアクリルとメタルの融合感が男心をくすぐってやまない。

 

 

 

 

 

子供部屋。そこは夢の国だった。

 

83-2

 

83次は子供部屋だ。

 

 

 

 

 

 

 

 

84

デズニーランドか何かですか!?

 

夢の国すぎる。

 

85

しとどに出ているハッピー感が、基本スサんでいる筆者にとっては眩しい。

 

 

 

 

87

お子様大好きロフト

 

ベットにしても収納にしてもヨシ。

 

 

 

 

 

 

86

なぜかドアが2つある。

 

 

88

クローゼットも二つ。

 

 

 

 

 

 

89

ちなみに中はつながっている。

 

 

 

 

 

 

 

そう。この部屋の最大の特徴は将来個室にセパレートできることだ。

 

イカスー。(死語)

 

 

長くなってきたので、ここまで。

 

次回で完結篇だ。楽しみにしてくれ。

 

関連記事

全部見せます!!【家ツアー】第5弾 『中庭とカーテンのいらないリビングの家』その3

この家の収納力。半端ない。ドッチからでもどうぞ。家族共用ウォークインクローゼット。入り口が2つあるウォークインクローゼットだった。そして書斎。

この記事の施工写真集

中庭とカーテンのいらないリビングの家

大阪府八尾市のご家族4人で暮らす家。住宅街の中に真っ白で潔さを感じるデザインがひときわ目立つ家になりました。 玄関を入ると大きな収納スペース兼、シューズクロークがあり、大量の靴、ご主人様のサーフ
資料請求はこちら
友だち追加数

家ツアー

過去のブログ一覧はこちら >

資料請求はこちら

TAG:

工事 (69)

間取り (59)

レイアウト (58)

外観 (50)

デザイン (43)

奥様必見 (41)

キッチン (40)

LDK (36)

リビング (33)

便利機能 (32)

家ができるまで (32)

水まわり (27)

収納 (25)

家事楽 (22)

吹き抜け (21)

オーダーメイド (16)

玄関 (15)

洗面所 (15)

上棟 (14)

キューブハウス (14)

中庭 (12)

子供部屋 (12)

夫婦の寝室 (11)

ストリップ階段 (11)

基礎 (11)

広さ (10)

ポーチ (10)

ジョジョ (10)

駐車場 (9)

多目的デスク (9)

家具 (9)

家ツアー (9)

外構 (8)

完成見学会 (8)

リフォーム (8)

フローリング (8)

基礎工事 (7)

寝室 (6)

着工 (6)

和室 (4)

費用 (3)

建築用語 (3)

色 (3)

シューズクローク (3)

ウグイス今浦 (3)

内装工事 (3)

棟梁 (3)

外壁工事 (3)

工事の様子 (3)

スキップフロア (2)

ローン (2)

減税 (2)

事務所 (2)

耐震等級 (2)

畳コーナー (2)

まとめ (2)

無垢 (2)

天井高い (2)

ガルバリウム (2)

巾木 (2)

インタビュー (2)

仕事のスタイル (2)

ラスボス (2)

小上がり (2)

設備工事 (2)

駐輪場 (1)

土地探し (1)

ローコスト (1)

坪単価 (1)

店舗改装 (1)

おもしろ (1)

設計事務所 (1)

パース (1)

トイレ (1)

模型 (1)

地鎮祭 (1)

開放感 (1)

白と茶 (1)

天窓 (1)

省エネ (1)

ガレージ (1)

リビング階段 (1)

リノベーション (1)

自然素材 (1)

漆喰 (1)

珪藻土 (1)

SNS (1)

洗濯 (1)

平屋 (1)

SUP (1)

導線 (1)

現場 (1)

浴室 (1)

クロス貼り (1)

広々空間 (1)

年始 (1)

明けましておめでとうございます (1)

脱衣所 (1)

サンジ (1)

ワンピース (1)

ウォークインクローゼット (1)

トムヤム野坂 (1)

白い家 (1)

コノボリくん (1)

中間検査 (1)

電気工事 (1)

クロス工事 (1)

あたりまえポエム (1)

インスタグラム (1)

セパレート (1)

共有デスク (1)

畳 (1)

多目的スペース (1)

耐震補償 (1)

屋根 (1)

プライバシー (1)

高気密住宅 (1)

高断熱住宅 (1)

ビルドインガレージ (1)

ガレージハウス (1)

ランドリールーム (1)

ファミリークローゼット (1)

2ボウル洗面台 (1)

部屋干し (1)

L型キッチン (1)

理想のベッド (1)

テレワーク (1)

ワークスペース (1)

水槽 (1)

過去のブログ一覧はこちら >

  • FAQ
  • 施工事例
  • facebook
  • line@始めました
  • 建築のご相談・見学
  • 資料請求